Bản vẽ thiết kế cửa thép chống cháy 60 phút, 90 phút, 120 phút
Cửa thép chống cháy hiện nay được sử dụng nhiều trong các công trình chung cư, căn hộ cao cấp, biệt thự, trung tâm thương mại, cao ốc văn phòng, siêu thị,…
Xem thêm cửa gỗ chống cháy tại: https://mfd.vn/cua-chong-chay/cua-go-chong-chay/
Cửa thép chống cháy có tác dụng ngăn cháy lan.
Ví dụ: nếu khu vực A có cháy thì khi có cửa thép chống cháy đóng kín thì lửa và khói sẽ không cháy lan qua khu vực B. Điều này là bắt buộc trong các khu vực công cộng, khi có cháy thì lửa sẽ không lan ra các khu vực khác, đặt biệt là các khu vực thoát hiểm.
Cửa thép chống cháy chia ra làm nhiều cấp độ chịu nhiệt khác nhau như: cửa thép chống cháy chịu lửa 60 phút, 90 phút, 120 phút. Cửa thép chống cháy còn được sử dụng làm cửa an toàn, cửa thoát hiểm, cửa cho phòng kỹ thuật, cửa cho phòng điện,…
Sau đây là bản vẽ tham khảo của một số loại cửa thép chống cháy:
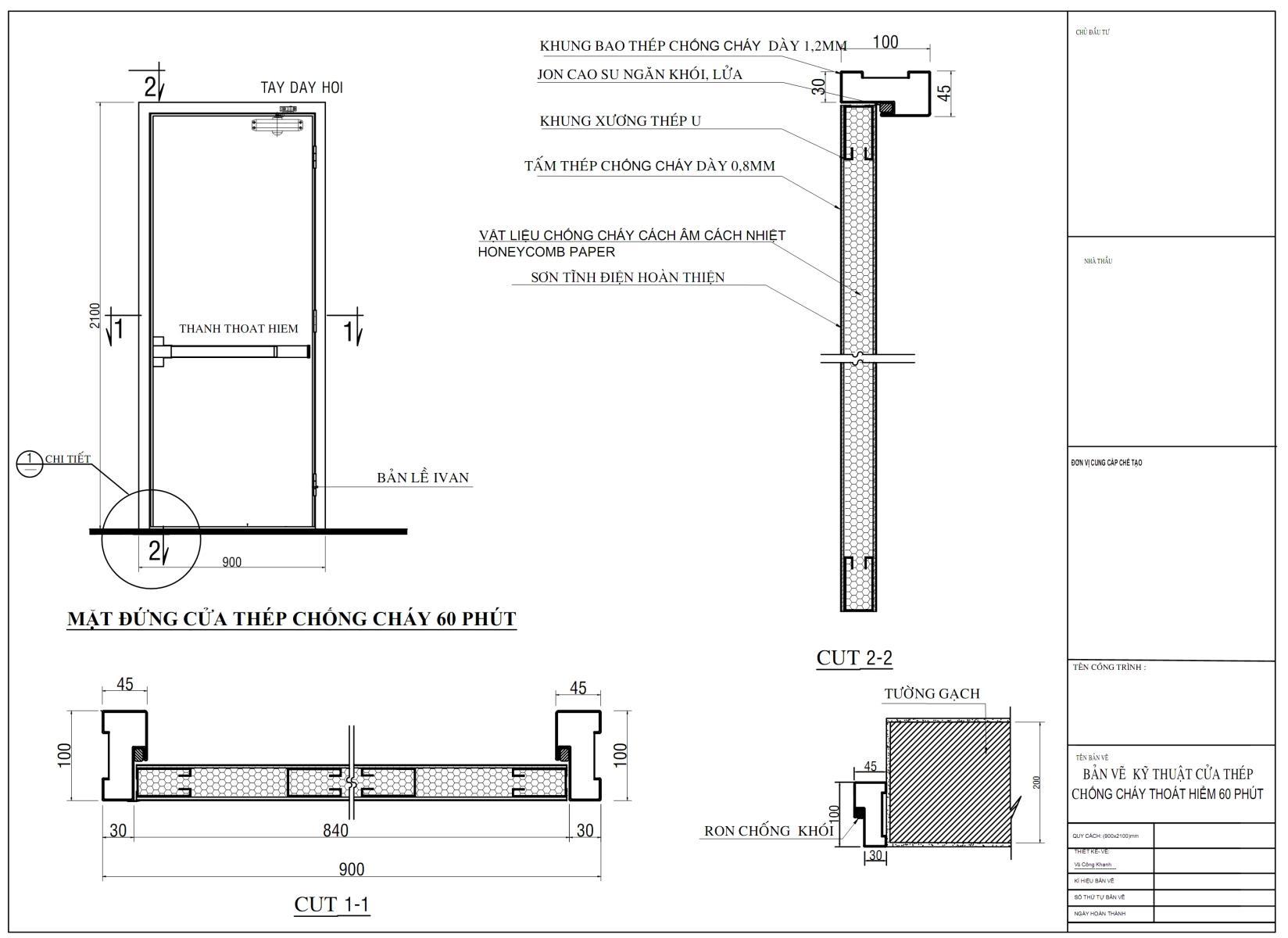
1. Cửa thép chống cháy 60 phút, cửa thép dùng khóa cốt tròn

2. Cửa thép chống cháy 60, cửa thép đôi kích thước cánh lớn có dùng phương pháp nối thép cánh, cửa sử dụng dùng khóa tay gạt

3. Cửa thép chống cháy 60, cửa thép đôi 2 cánh, cửa sử dụng dùng khóa tay gạt

4. Cửa thép chống cháy 90 phút, cửa thép 2 cánh, dùng thanh thoát hiểm

5. Cửa thép chống cháy 60 phút, dùng thanh thoát hiểm

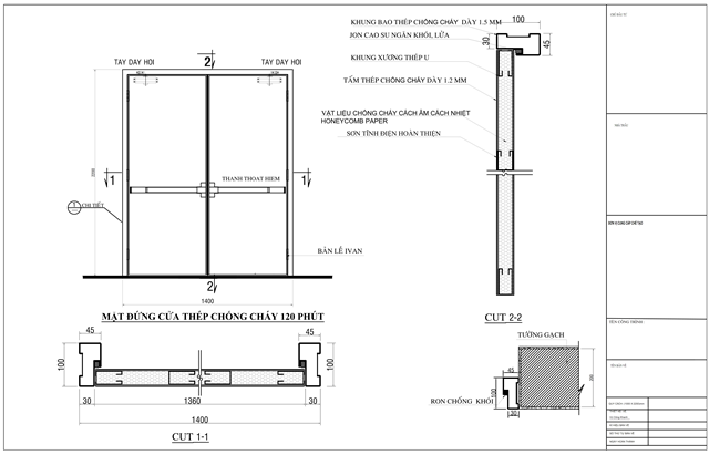
6. Cửa thép chống cháy 120 phút, cửa thép đôi, dùng thanh thoát hiểm

Xem thêm bản vẽ cửa gỗ chống cháy tại: https://mfd.vn/ban-ve-cau-tao-cua-go-cong-nghiep-chong-chay/
Tùy thuộc vào thời gian và cấp độ chịu lửa, cửa thép được thiết kế theo thông số kỹ thuật như sau:
Cửa thép chống cháy 60/90/120 phút
- Độ dày tổng thể cánh cửa 40mm (± 2)..
- Khung bao thép nguội mạ kẽm dày 1.2/1.4/1.5mm.
- Cánh cửa thép nguội mạ kẽm dày 0.8/1/1.2mm.
- Độ dày khung 45 x 100 (± 5mm).
- Joint cao su dọc khung bao.
- Chất chống cháy honeycomb paper/sợi thủy tinh.
- Bộ cửa bao gồm (cánh, khung, sơn hoàn chỉnh).
- Chiều cao phủ bì tối đa không quá 2400mm hoặc thiết kế ô cố định lên cap
- Kích thước được sản xuất theo yêu cầu thực tế của khách hàng
Màu sắc Cửa thép chống cháy 60/90/120 phút: Có thể sơn màu tùy thích hoặc sơn màu giả gỗ
Tất cả các sản phẩm cửa chống cháy bao gồm các thông số kỹ thuật vật liệu, hình dạng màu sắc, quy cách có thể thay đổi mà không cần báo trước.
Sản phẩm được sản xuất theo thực tế theo yêu cầu khách hàng và phù hợp với quy cách từng loại sản phẩm.
Báo giá cửa chống cháy bao gồm khung cánh. Các phụ kiện như khóa, bản lề, tay đẩy hơi, thanh thoát hiểm, hít cửa, chặn cửa, khóa từ, mắt thần,… là phụ kiện kèm theo, yêu cầu khách hàng chọn loại phù hợp để chúng tôi báo giá tốt nhất.
======================================================
HỖ TRỢ KHÁCH HÀNG
HỆ THỐNG SHOWROOM GIAHUYDOOR®
